

福祉の時代といわれる21世紀。
健康や医療、福祉の充実がより一層注目される中、福祉施設の拡充といつでも身近に福祉サービスが受けられる拠点の設備が強く望まれています。
「いずみの苑」は緑豊かな田園地帯の中、ゆったりとした敷地と住居空間を有し、自然に湧き出る温泉を利用した入浴やモイストプロセッサーなど、入られる方への配慮を考え設備を整えました。
介護を受けられる方はもちろん、ご家族の方々にも安心していただけるサービスの提供をモットーに、高齢化社会に対応した福祉サービスの拠点、地域ボランティアの活動の場にしたいと考えております。
緑豊かな田園地帯の広い敷地に中庭公園や遊歩道、植栽をふんだんに配し自然とふれあえる恵まれた環境です。
自然に湧き出る温泉を体の芯まで温まる入浴に活用しています。
車椅子や寝たままでリラックスして入浴いただけるようにスタッフがお手伝します。


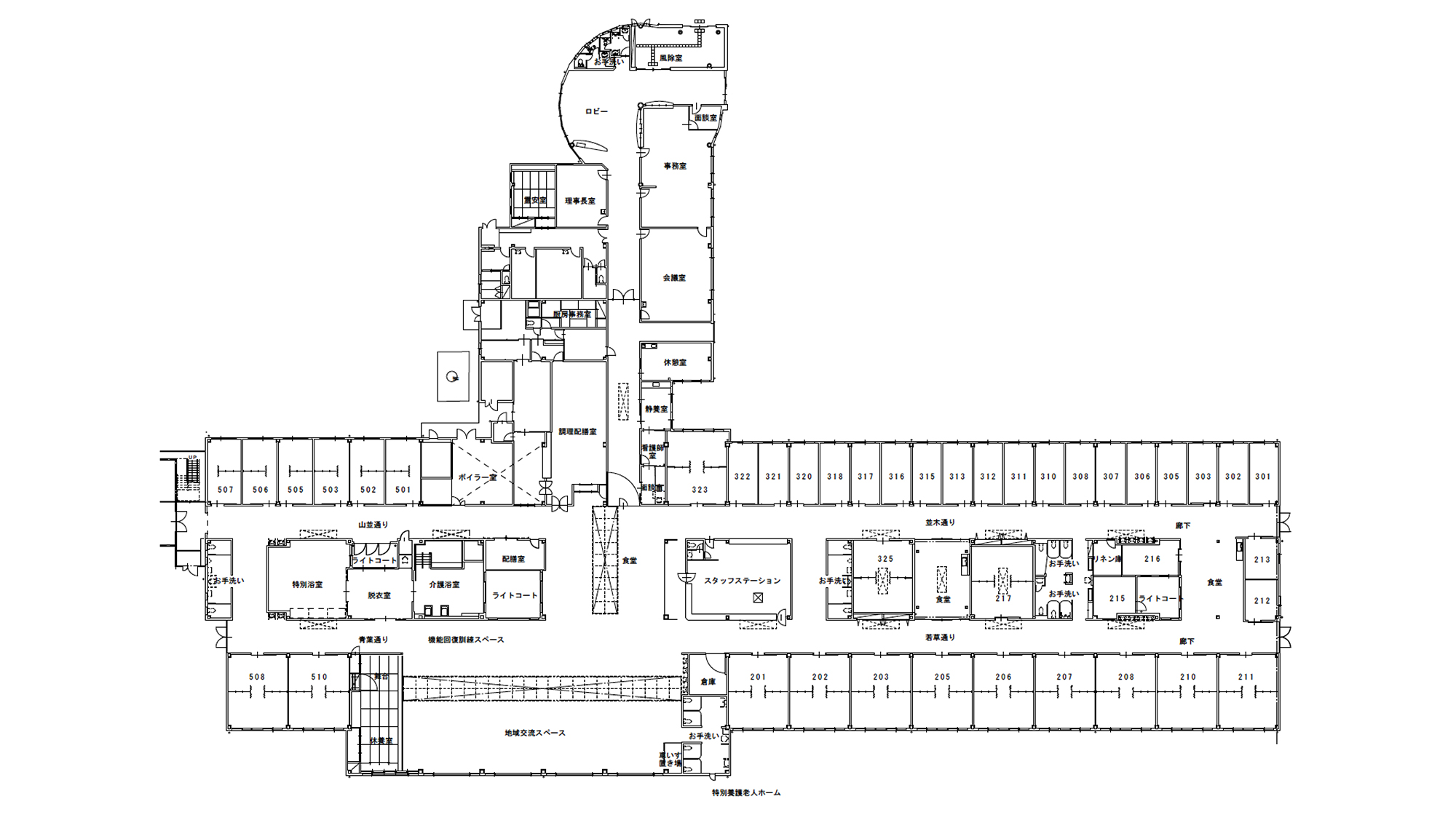
高齢者のためのバリアフリーを取り入れた平屋建て。各お部屋、廊下、地域交流スペースなども広々とした余裕のスペースです。


ミニ演奏会、講演会、交流会、展示会など、さまざまな活動を通じて地域の方々とふれあい、利用していただくスペースです。
また、入所の方々の交流など福祉学習の研修施設としてもご利用いただけます。

ご家族や面会に来られた方と、一緒にお話していただくスペースで、ゆっくりとくつろいでいただけます。

広い窓から自然の光がたっぷり入る明るいお部屋で、ゆったりとお過ごしいただけます。


それぞれの方々に応じたメニューで、あたたかなお食事を提供いたします。

衛生的で快適な生活を過ごしていただくために、最新のコンピューターによる消毒・殺菌などの衛生管理を行ってます。

老人福祉法によりおおむね65歳以上の人であって、身体上又は精神上に著しい障害があるために常時の介護を必要とし、かつ居宅においてこれを受けることが困難な人が入所し養護することを目的とします。
| 建物 | 建物構造/ 耐火構造 平屋建て |
|---|---|
| 面積 | 敷地面積 10,885㎡ 建物面積 3,769.14㎡ |
| 開設年月日 | 平成11月8月25日 |
| 定員 |
|
| 居室数 |
|

| 6:00 | 起床、洗面、衣服着替え |
|---|---|
| 7:30 | 朝食、服薬、口腔ケア |
| 9:30 | 午前入浴、水分補給、シーツ交換・清掃 |
| 11:30 | リハビリ体操 |
| 12:00 | 昼食、服薬、口腔ケア |
| 14:30 | リクレーション、クラブ活動 |
| 15:00 | おやつ、お茶、歩行訓練(リハビリ) |
| 15:30 | 午後入浴 |
| 18:00 | 夕食、服薬、口腔ケア |
| 19:30 | 検温・水分補給 |
| 20:00 | お茶、薬配布 |
| 21:00 | 就寝 |
利用者の希望や状態に応じたサービス計画(ケアプラン)を作成します。
淀江地域における高齢者の介護予防、相談、指導等を包括的に支援します。
ご家庭でお年寄りのお世話をされている方が何かの事情で家庭での介護ができないときに一時的にお預かりしてお世話をする施設です。リフト車などで送迎もします。